Property Detail

2500 Phelan Lane

Redondo Beach CA 90278

$2,395,000

Status: Active

Property Details

Description

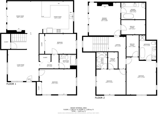
Brand new construction in North Redondo Beach, this stunning 5-bedroom, 4-bath home offers a thoughtfully designed floor plan, elevated finishes, and seamless indoor-outdoor living. The main level features a bright and open layout with a spacious living room and a versatile room with a fireplace—ideal as a formal dining space or an additional family room—just off the kitchen. The chef’s kitchen features quartz countertops, sleek appliances, and ample cabinetry. A sliding door off the versatile room opens to a private side patio, creating an easy indoor-outdoor connection, while an additional grass yard provides extra outdoor space. Two bedrooms and a full bath with a shower/tub combo are conveniently located on the main level, along with the laundry area. Upstairs, you’ll find three bedrooms, including dual primary suites—each featuring walk-in closets and bathrooms with walk-in showers, soaking tubs, and dual vanities. A third upstairs bedroom also offers its own en-suite bathroom, providing comfort and privacy for family or guests. Additional highlights include beautiful quartz finishes throughout and central A/C. Ideally located in North Redondo Beach, this brand-new home combines modern style, flexible living spaces, and everyday functionality.

Map Location

Listing provided courtesy of Julie Lyon of Lyon Stahl Investment Real Estate, Inc.. Last updated 2026-04-23 08:22:54.000000. Listing information © 2025 CRMLS.

Destiny Six Financial
admin Real estate 9:00 AM - 5:00 PM 9:00 AM - 5:00 PM 9:00 AM - 5:00 PM 9:00 AM - 5:00 PM 9:00 AM - 6:00 PM 9:00 AM - 5:00 PM 9:00 AM - 5:00 PM https://static.royacdn.com/Site-69367b46-38a9-47a3-ab4d-b67fef77f61f/teamAssets/derrick_.png realtor # # # https://static.royacdn.com/Site-69367b46-38a9-47a3-ab4d-b67fef77f61f/teamAssets/derrick_.png