Property Detail

65311 San Jacinto

Desert Hot Springs CA 92240

$3,450,000

Status: Active

Property Details

Description

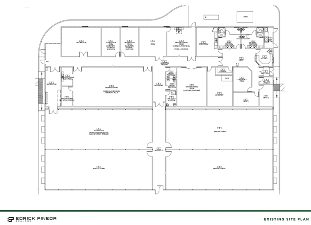
SELLER FINANCING AVAILABLE | PRIME INDUSTRIAL CORRIDOR | NEAR I-10 & AMAZON | FLEX + EXPANSION LAND | 2.5 CORNER LOTSELLER FINANCING AVAILABLE!!!Positioned in the growing Industrial Corridor of Desert Hot Springs, Property presents a RARE OPPORTUNITY to acquire a +/-19,634 SF INDUSTRIAL WAREHOUSE on a +/-2.52-acre CORNER LOT with significant upside and flexibility.Zoned M (Light Manufacturing), the property SUPPORTS a WIDE RANGE OF USES including WAREHOUSE, DISTRIBUTION, MANUFACTURING, MULTI-OFFICE, FLEX INDUSTRIAL, and is well-suited for SPECIALIZED OPERATIONS such as CANNABIS, DATA INFRASTRUCTURE, OR EV-RELATED USES (subject to buyer verification and approvals).Property underwent MAJOR RENOVATIONS, including upgrades to PLUMBING, ELECTRICAL SYSTEMS, and extensisve clean up. The property is equipped with 277/480V 3-PHASE POWER and a diesel generator, providing infrastructure that may accommodate POWER-INTENSIVE USES or specialized operations.The functional layout includes MULTIPLE MANUFACTURING and STORAGE ROOMS, DISTRIBUTION/PACKAGING AREAS, INVENTORY SPACE, OFFICES, CONFERENCE ROOM, LOBBY, BREAK ROOM, and WASHROOMS, offering the flexibility to support single-tenant or multi-tenant configurations.The site is secured with GATED ACCESS, and an extensive security system equipment, making it well-positioned for regulated or high-security uses.A key differentiator is the +/-15,000+ SF OF ADDITIONAL BUILDABLE LAND, creating the opportunity to EXPAND STRUCTURES, ADD YARD SPACE, INSTALL EQUIPMENT, OR DEVELOP ADDITIONAL INCOME STREAMS--ideal for investors seeking to MAXIMIZE OCCUPANCY AND OPERATIONAL SCALABILITY.Strategically located NEAR I-10 and the AMAZON LOGISTICS FACILITY, the property benefits from strong regional logistics access and continued industrial growth.Ideal for OWNER-USER, FLEX INDUSTRIAL OPERATOR, or VALUE-ADD INVESTOR seeking a scalable asset with infrastructure and expansion potential.

Map Location

Listing provided courtesy of Edrick Pineda of LPT Realty. Last updated 2026-05-12 08:39:01.000000. Listing information © 2025 CRMLS.

Destiny Six Financial
admin Real estate 9:00 AM - 5:00 PM 9:00 AM - 5:00 PM 9:00 AM - 5:00 PM 9:00 AM - 5:00 PM 9:00 AM - 6:00 PM 9:00 AM - 5:00 PM 9:00 AM - 5:00 PM https://static.royacdn.com/Site-69367b46-38a9-47a3-ab4d-b67fef77f61f/teamAssets/derrick_.png realtor # # # https://static.royacdn.com/Site-69367b46-38a9-47a3-ab4d-b67fef77f61f/teamAssets/derrick_.png