Property Detail

1501 Rock Springs

San Marcos CA 92069

$974,990

Status: Active

Property Details

Description

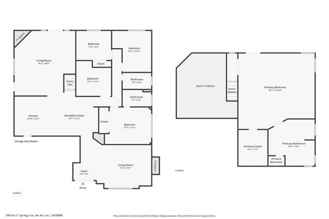
Welcome to an exceptional opportunity in the highly sought-after community of San Marcos Woods - a beautifully reimagined, Solar-Powered residence offering over 2,600 square feet of thoughtfully designed living space. Tastefully remodeled, this 5-bedroom, 3-bathroom home blends modern comfort with timeless appeal. As you step through the custom front door, you’re welcomed into the formal living room, anchored by a cozy fireplace that creates an inviting first impression. Just beyond, the kitchen serves as the heart of the home, opening seamlessly to the family room - a dramatic space highlighted by soaring cathedral ceilings, a custom brick fireplace, and an abundance of windows that flood the home with natural light throughout the day. Off the family room, you’ll find four generously sized bedrooms on the main level, including a private primary suite ideal for multigenerational living or guests, along with an additional full bathroom. Upstairs, a second and oversized primary retreat offers a true sanctuary — complete with a spa-inspired ensuite bath featuring a jetted soaking tub, walk-in shower, spacious walk-in closet, and a private balcony where you can unwind while taking in breathtaking coastal sunsets over the valley. Every detail has been thoughtfully upgraded, including brand new windows throughout, fresh interior paint, new exterior & garage doors, luxury vinyl plank flooring, plush new carpet, ceiling fans, LED Lighting, EV Charging Station, and beautifully resurfaced cabinetry and countertops complemented by new high-end stainless steel appliances. Practical improvements provide long-term value and peace of mind: OWNED solar panels free and clear, a newer AC and furnace system, and extensive exterior enhancements. The backyard has been professionally refreshed with new plants and fruit trees, artificial turf, pavers, and elegant exterior lighting - creating a low-maintenance yet inviting space perfect for year-round entertaining and true in/outdoor living. Situated in an area known for strong demand, excellent nearby schools, ultra-low property taxes, and low HOA fees, this home offers both exceptional lifestyle and long-term investment potential. Once someone’s forever home, it is now an opportunity for its next chapter. With high-quality upgrades, versatile living spaces, and a premier location, this is a rare find in today’s market, one that truly feels like home the moment you arrive. Call today to schedule your private tour.

Map Location

Listing provided courtesy of Brian Prieboy of LPT Realty, Inc. Last updated 2026-02-26 09:16:20.000000. Listing information © 2025 CRMLS.

Destiny Six Financial
admin Real estate 9:00 AM - 5:00 PM 9:00 AM - 5:00 PM 9:00 AM - 5:00 PM 9:00 AM - 5:00 PM 9:00 AM - 6:00 PM 9:00 AM - 5:00 PM 9:00 AM - 5:00 PM https://static.royacdn.com/Site-69367b46-38a9-47a3-ab4d-b67fef77f61f/teamAssets/derrick_.png realtor # # # https://static.royacdn.com/Site-69367b46-38a9-47a3-ab4d-b67fef77f61f/teamAssets/derrick_.png