Property Detail

22727 Collins

Woodland Hills CA 91367

$999,000

Status: Active

Property Details

Description

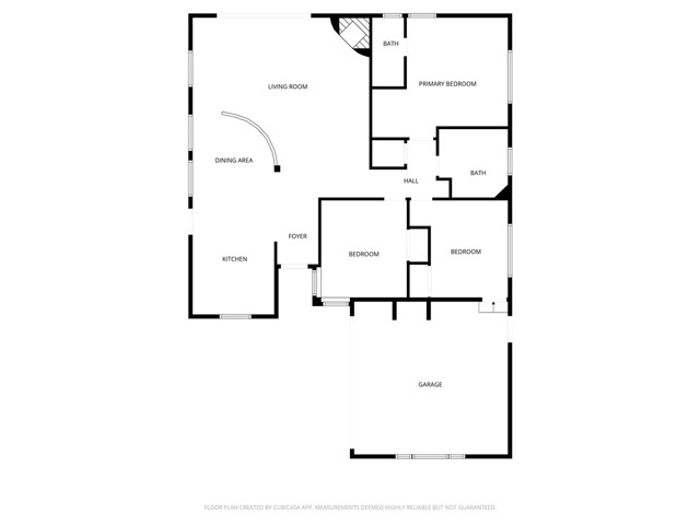
Fantastic opportunity to own a single story pool home situated on an extremely rare street-to-street lot! A large portion of the property extends over 200 feet and connects to the street behind (Miranda), presenting amazing investment potential to build an ADU or alternatively use for extra backyard play space for a sports court/outdoor kitchen/etc or use for oversized parking for RVs/boats - the possibilities are endless. The classic ranch home is cladded with original stone & wood siding and sits back from the street with long driveway lined by towering mature Palm trees that leads to the attached 2-car garage with direct access. Step inside to find a completely open floor plan filled with natural light. The oversized central living room boasts high vaulted wood beamed ceiling, stone fireplace, and sliding glass doors that open to the backyard. The open kitchen features granite counters and stainless appliances. A separate dining area connects the kitchen and living room and features real hardwood flooring. The three bedrooms are located on their own private wing of the home. The primary bedroom features a spacious closet and a private en-suite bathroom with walk-in shower. The two secondary bedrooms have closets with built-ins and share a large hall bathroom with dual sinks and bath tub with shower. The backyard is highlighted by a resurfaced swimming pool and features a sweeping covered patio for outdoor dining and an expansive portion of land with fruit trees that provides a blank canvas to customize to your liking. Additional system upgrades per seller include new HVAC system (2025), newer electrical panel (2023), copper plumbing (2006), and dual paned windows throughout. Adjacent to Westfield Mall/Village, Calabasas Commons, Warner Center with the new Rams Village in development, & zoned for award-winning El Camino & Hale charter schools.

Map Location

Listing provided courtesy of Desiree Zuckerman of Rodeo Realty. Last updated 2026-02-13 09:20:31.000000. Listing information © 2025 CRMLS.

Destiny Six Financial
admin Real estate 9:00 AM - 5:00 PM 9:00 AM - 5:00 PM 9:00 AM - 5:00 PM 9:00 AM - 5:00 PM 9:00 AM - 6:00 PM 9:00 AM - 5:00 PM 9:00 AM - 5:00 PM https://static.royacdn.com/Site-69367b46-38a9-47a3-ab4d-b67fef77f61f/teamAssets/derrick_.png realtor # # # https://static.royacdn.com/Site-69367b46-38a9-47a3-ab4d-b67fef77f61f/teamAssets/derrick_.png