Property Detail

5209 Lake Isabella

Lake Isabella CA 93240

$450,000

Status: Active

Property Details

Description

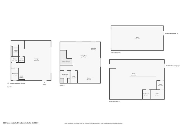
Positioned along Lake Isabella Boulevard, this C-2 zoned commercial property offers a rare opportunity to secure a high-visibility location in the heart of Lake Isabella. Zoned Commercial 2 and designated for buildings only, the property is well suited for a wide range of commercial uses and future development.The property includes a beautiful two-story 2-bedroom, 2-bath residence, adding flexibility for investors or owner-users. Featuring real wood floors and rich wood detailing throughout, the home offers warmth and character and would be ideal for a short-term rental or Airbnb, owner occupancy, or a live-work concept, subject to buyer's intended use and local guidelines.Located on a main thoroughfare, the property benefits from steady traffic flow and proximity to surrounding businesses, outdoor recreation, and the Kern River Valley lifestyle. Lake Isabella continues to attract visitors and locals seeking small-town charm with growing commercial demand.Endless potential.

Map Location

Listing provided courtesy of Elizabeth Jimenez of Real Broker. Last updated 2026-02-12 09:44:29.000000. Listing information © 2025 CRMLS.

Destiny Six Financial
admin Real estate 9:00 AM - 5:00 PM 9:00 AM - 5:00 PM 9:00 AM - 5:00 PM 9:00 AM - 5:00 PM 9:00 AM - 6:00 PM 9:00 AM - 5:00 PM 9:00 AM - 5:00 PM https://static.royacdn.com/Site-69367b46-38a9-47a3-ab4d-b67fef77f61f/teamAssets/derrick_.png realtor # # # https://static.royacdn.com/Site-69367b46-38a9-47a3-ab4d-b67fef77f61f/teamAssets/derrick_.png