Property Detail

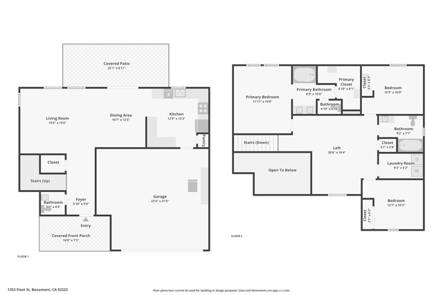
1353 Fleet

Beaumont CA 92223

$499,000

Status: Active

Property Details

Description

Welcome to this inviting 3-bedroom, 2.5-bath home in the growing community of Orchid Park by Meritage Homes in Beaumont, beautifully set against snow-capped mountain views. Designed for both comfort and flexibility, the home features a dramatic entry opening to the great room and dining area, ideal for everyday living and entertaining alike. Upstairs, you’ll find a spacious loft, wide hallways, and a conveniently located upper-level laundry room. The primary suite offers a relaxing retreat with dual sinks featuring cultured ceramic countertops and a generous walk-in closet. Flooring throughout includes a blend of vinyl, laminate, tile, and carpet. Outside, the expansive backyard provides ample space for a future pool, outdoor entertaining, or customization to suit your lifestyle. Additional highlights include a Level 2 Tesla EV charger and proximity to new shopping centers, restaurants, schools, and medical facilities—offering a quieter lifestyle while staying well connected.

Map Location

Listing provided courtesy of GONZALO SALAZAR of REDFIN. Last updated 2026-02-19 09:15:09.000000. Listing information © 2025 CRMLS.

Destiny Six Financial
admin Real estate 9:00 AM - 5:00 PM 9:00 AM - 5:00 PM 9:00 AM - 5:00 PM 9:00 AM - 5:00 PM 9:00 AM - 6:00 PM 9:00 AM - 5:00 PM 9:00 AM - 5:00 PM https://static.royacdn.com/Site-69367b46-38a9-47a3-ab4d-b67fef77f61f/teamAssets/derrick_.png realtor # # # https://static.royacdn.com/Site-69367b46-38a9-47a3-ab4d-b67fef77f61f/teamAssets/derrick_.png