Property Detail

KASPIAN

Aptos CA 95003

$699,000

Status: Active

Property Details

Description

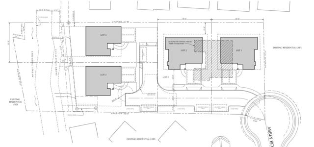
Attention Investors & Developers! This is an Incredible Opportunity! This is Lot 2 of Recently Split 4 Parcels. Preliminary Plans Are Available and Can Be Approved Quickly if Desired. Seller has Completed Laterals Including Gas. Seller Can Have Rough Driveways and Finished Pavement Completed. Buyer can Purchase Individually or Together! All Lots for Sale Now! Check Kaspian Court Listings! Highly Rated Soquel High School! Short Distance to Capitola Village, Cabrillo College, and New Brighton State Beach!

Map Location

Listing provided courtesy of Jake Gipson of KW Bay Area Estates. Last updated 2025-12-22 09:21:30.000000. Listing information © 2025 CRMLS.

Destiny Six Financial
admin Real estate 9:00 AM - 5:00 PM 9:00 AM - 5:00 PM 9:00 AM - 5:00 PM 9:00 AM - 5:00 PM 9:00 AM - 6:00 PM 9:00 AM - 5:00 PM 9:00 AM - 5:00 PM https://static.royacdn.com/Site-69367b46-38a9-47a3-ab4d-b67fef77f61f/teamAssets/derrick_.png realtor # # # https://static.royacdn.com/Site-69367b46-38a9-47a3-ab4d-b67fef77f61f/teamAssets/derrick_.png