Property Detail

13605 Flying Cloud

Victorville CA 92394

$533,294

Status: Active

Property Details

Description

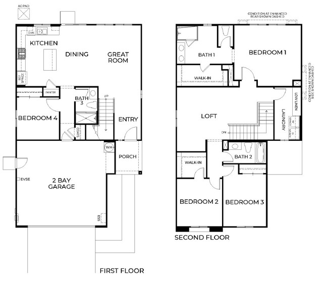
NEW CONSTRUCTION - SINGLE-FAMILY HOMES – NEW COMMUNITY! Welcome to Dawson Pointe at West Creek, an amazing and unique new community located in the city of Victorville. Featuring 168 residences with thoughtfully-designed layouts and energy efficiency in mind, Dawson Pointe at West Creek offers one and two-story homes ranging from 1,310 sq. ft. to 2,260 sq. ft. and up to 5 bedrooms and 3 bathrooms. A beautiful, long entry sets the stage for this RESIDENCE 2057 plan which features a spacious, open-concept Great Room and Kitchen space designed for celebrations together. You'll love the convenient MAIN FLOOR BEDROOM, offering the flexibility to serve as a bedroom, or as an extra office or creative space, AND MAIN FLOOR FULL BATH. The gourmet Kitchen with separate Dining area and large Kitchen Island showcases granite counter tops, stainless-steel appliances and a convenient pantry and sliding doors that lead to a great backyard, ready for your imagination. Upstairs, an expansive Loft space leads to two, generous additional bedrooms, a secondary bath and a nicely-sized laundry room with small bonus space! The expansive Primary Bedroom is like a separate retreat and leads to a luxurious, large Primary Bath with walk-in-shower, dual sink vanity and large, walk-in closet. Among the other features and finishes, homeowners will appreciate the unparalleled peace of mind in owning America’s Smart Home, Home is Connected. The Home is Connected package offers devices conveniently controlled though one application to stay connected to Home around the clock.

Map Location

Listing provided courtesy of Melissa Handler of D R Horton America's Builder. Last updated 2025-12-11 21:25:08.000000. Listing information © 2025 CRMLS.

Destiny Six Financial
admin Real estate 9:00 AM - 5:00 PM 9:00 AM - 5:00 PM 9:00 AM - 5:00 PM 9:00 AM - 5:00 PM 9:00 AM - 6:00 PM 9:00 AM - 5:00 PM 9:00 AM - 5:00 PM https://static.royacdn.com/Site-69367b46-38a9-47a3-ab4d-b67fef77f61f/teamAssets/derrick_.png realtor # # # https://static.royacdn.com/Site-69367b46-38a9-47a3-ab4d-b67fef77f61f/teamAssets/derrick_.png